エリア・駅


賃料

間取り

専有面積

築年数

物件種別

絞り込み条件

プロス世田谷 401

7.3万 / 管理費等 なし

賃料 7.3万円
共益費 なし
敷金 / 礼金 1ヶ月 / なし
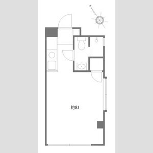
間取 1R (南西)
面積 23.12㎡ (13.96帖)
築年月 1989年9月(築36年)
所在階 4階 / 4階建
部屋向き 南西

担当者より


設備 都市ガス・角部屋・フローリング・冷暖房・冷房・IHクッキングヒータ・トイレ・シューズボックス
周辺施設 グローバルキッズ松陰神社駅前保育園 208m 弦巻小学校 駒沢中学校 870m 国士舘高等学校 717m スーパー 112m コンビニ 109m
保証会社 利用必須 / ①シノケン②ルームID / ①初回:月額総賃料の50%~(最低保証料5万円、連保付3万円)、次年度以降1万円~※引落とし手数料660円②初回:月額総賃料の50%/月次保証料:月額総賃料の1.5%
住宅保険料
契約形態 普通借家・ 契約期間 24ヵ月
取引態様 媒介
入居可能日 相談
入居条件
その他の入居条件 解約予告2ヶ月前※短期解約違約金有(1年未満/1ヶ月) 
その他初期費用 プレミアデスク(2年/税込) 22,000円 鍵交換費用 27,500円
仲介手数料:賃料1ヶ月分+消費税
その他月額費用
退去時費用 退去費用実費精算
※故意又は過失による汚損・破損は別途費用がかかる場合がございます。
備考 ☆駅チカ3分☆■短期解約違約金:1年未満1カ月 ■解約予告:2カ月前■プレミアデスク代の中に登録料6,600円(税込)を含みます。■大手法人契約時【+礼1】で諸条件ご相談可■本物件は電子契約となります。※写真は参考となりますのでご注意ください。
建物名 プロス世田谷
駐車場
物件種別 マンション
建物構造 鉄骨造
総戸数 20
物件番号 18460319

お問い合わせ

印刷(PDF)

※掲載されている物件データが現況と異なる場合は現況を優先します。

※弊社は予約優先です。予約のない方はお待ちいただく場合がございます。事前予約の方は、ご案内含め全てスムーズに進みます。

情報公開日:2026/05/17
更新予定日: