S.E.S. 101
16.7万 / 管理費等 なし
| 賃料 | 16.7万円 |
| 共益費 | なし |
| 敷金 / 礼金 | 1ヶ月 / なし |
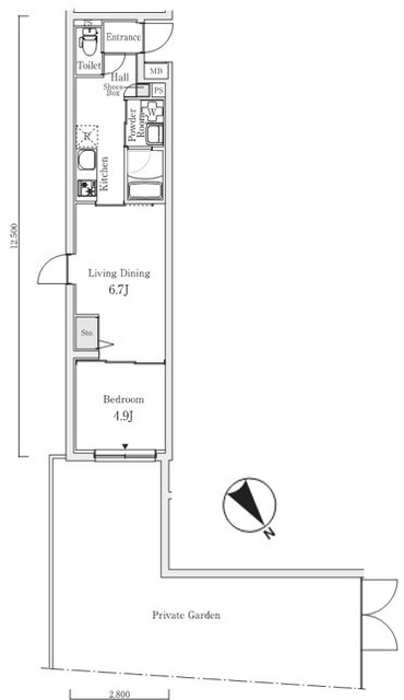
| 間取 | 1LDK (北東) |
| 面積 | 33.52㎡ (20.24帖) |
| 築年月 | 2026年3月(築0年) |
| 所在階 | 1階 / 5階建 |
| 部屋向き | 北東 |
担当者より
| 設備 | エレベータ・バイク置場・専用庭・オートロック・管理人あり・モニタ付オートロック・管理人巡回・フローリング・冷暖房・洗濯機置場(室内)・システムキッチン・浴室換気乾燥機・バス・トイレ別・室内洗濯置場・独立洗面台・宅配ボックス |
| 周辺施設 | 用賀保育園 197m 桜町小学校 瀬田中学校 961m 戸板女子短期大学高等学校 533m スーパー 272m コンビニ 179m |
| 保証会社 | 利用可 / レジデントアシスタント / 初回:月額賃料(共益費・駐車場料金含む)の50%、年間:9,600円 |
| 住宅保険料 | 有 |
| 契約形態 | 普通借家・ 契約期間 24ヵ月 |
| 取引態様 | 媒介 |
| 入居可能日 | 2026年4月下旬 |
| 入居条件 | ペット相談可 |
| その他の入居条件 | |
| その他初期費用 |
- 仲介手数料:賃料1ヶ月分+消費税 |
| その他月額費用 | 口座振替事務手数料 110円 |
| 退去時費用 |
室内清掃費 59,400円 ※故意又は過失による汚損・破損は別途費用がかかる場合がございます。 |
| 備考 | 賃貸戸数:41戸 ■法人契約限り礼金2ヵ月■ACクリーニング借主負担■1年未満解約違約金有■駐輪場:1住戸1台可※追加 |
| 建物名 | S.E.S. |
| 駐車場 | 無 |
| 物件種別 | マンション |
| 建物構造 | RC(鉄筋コンクリート造) |
| 総戸数 | |
| 物件番号 | 20408550 |